
'wbe house' by auau in kasugai, japan
all images courtesy auau
photographer: suzuki ken'ichi
nagoya-based architecture practice auau (akitoshi ukai) has sent us images of 'wbe house',
a two-storey dwelling in kasugai, japan. located in a densely populated residential neighbourhood,
the small house utilizes partial wall elements as an optical illusion to visually lengthen the sense of space.

street facade
while the house technically has two storeys, the interior is broken up in to a number of levels
in order to define separate programs without the aid of a full partition: the children's room,
located on the ground floor, is set off from the kitchen and dining space by a small step;
the living space is divided in a similar manner, resulting in a series of terraced steps which
ultimately leads up to the bedroom. this staging method enables the residence to remain open
to visual connection while intuitively defining the internal circulation.

interior view
the simple palette - wood and a shade of white - is used rhythmically to create cross-sectional
slices throughout the residence. by seemingly revealing the space in layers, the small area is
extended while a dynamic visual effect is created. the design also focuses on providing
maximum flexibility by utilizing a system of moveable walls on the upper level. the level of
privacy can also be manipulated through this function.

view from the family room

(left) upper floor bedroom
(right) children's room below the family room level

view of the kitchen/dining from the children's room

from the upper level

site plan

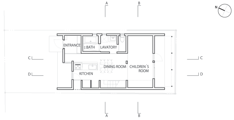
floor plan / level 0

floor plan / level +1

longitudinal section d-d

longitudinal section c-c

cross section a-a

cross section b-b

west elevation

east elevation

south elevation

north elevation

architectural elements of the house
(upper left) continuous wall
(upper right) floor slab
(bottom left) movable wall
(bottom right) box form

schematic diagram - flexibility with movable wall

schematic diagram - connection of area
- ۹۰/۰۳/۲۴



















