جدارههای بازشو جمعشو دیگرشوی :) پروانهای این بنا خیلی برام دیدنی و درس گرفتنی بود. به شما خیلی عملکردهای متنوع میده یک چنین طرحهایی. و به نظر خیلی از مشکلات این روزهای معماری ملک خودمون هم می تونه راهحلهایی از جنس طراحی جزئیات خوب و متناسب داشته باشه.
راستی تو نمایشگاه درب و پنجره چند روز پیش در تهران هم دیتیلی خوب برای جدارههای تجاری و فضاهایی مثل ایوانها و ورودی ها دیدم که چیزی شبیه این نمونه و البته شیشهای اون بود. (البته با کمال شرمندگی واردات بود!!!)

'AA2241' by arquitectura rifa
images courtesy of arquitectura rifa / © marcos guiponi
arquitectura rifa has designed 'AA2241', a single family home located in montevideo, uruguay that features a malleable and porous skin.
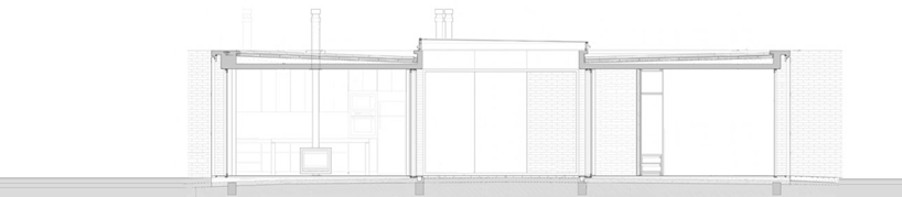
the plan, developed in one level, looks to establish a strong bond between the building and the land. elevational differences are minimum, and simple details such as small ramps or window frames recessed into the floor, strengthen this idea of accessible living.

detail of the aluminum structure intersecting with the existing boundary walls
inside, public and private spaces are defined in a horizontal sequence. schematically, the program is broken into three sections - social spaces at the front, an inner courtyard in the middle, and private spaces, the bedrooms at the back.

combinations of panels open and close, constantly changing the elevation
a mobile glass roof over the central courtyard articulates the house, allowing rooms to expand outwards and become usable year round. acting as an energy resource for the dwelling, the void accumulates heat in the winter and allows
proper ventilation in the summer.

(left) view into kitchen
(right) light filters through the porous panels
boundary walls enclose the site, hugging the sides of the structure, becoming the main texture of the house. the residence - wrapped in perforated anodized aluminum shutters that further merge the limits of interior and exterior - becomes
an interactive and evolving form, dictated by its users.

detail of perforated shutters
interior environments are rendered as simple and luminous with minimal application of color and texture, relying mostly on the visual and physical relationship with the garden.

interior

inner courtyard with mobile roof

entrance gateway

overall view at night

overall structure during construction

mobile roof under construction

floor plan

elevation

section



















