یانون دیزاین ... yanondesign

نگاهی روزانه به طراحی و هنر
نشریه‌ی ‌الکترونیکی روزانه؛ جسـتاری در هـنر و طـراحی
مشترک روزنامه یانون‌دیزاین شوید
پس از تکمیل فرآیند ثبت نام، ایمیل دریافتی را تایید نمایید.
تبلیغات

دوباره یانون‌دیزاین

قریب به نه ماه از آخرین پست انتشاری یانون‌دیزاین می‌گذرد! و دقیق‌تر قریب به یک سال از کم فعالیت‌ شدن و خسته‌ شدن یانون‌دیزاین!

یانون‌دیزاین تا پیش از این یک سال، با جامعه بزرگ و علاقه‌مندی از حوزه طراحی ، معماری و هنر آمیخته شده بود. خیلی‌ها در سال‌های ۸۶ که فقط به فرستادن ایمیل‌های گاه‌به‌گاه دیزاین به صندوق ایمیلی معدودی از دوستان ورودی ۸۵ دانش‌گاه هنرم مشغول بودم تا همین آغاز سال ۹۶ ، کم کم روزانه با ایمیل روزنامه یانون‌دیزاین، سیر اینترنتی خودشان در جهان هنر و طراحی را شروع می‌کردند. خیلی‌ها ابراز لطف فراوانی را در این سال‌ها به تیم فعال یانون‌دیزاین ابراز کرده‌اند و همین خیلی‌ها و بسیاری که منتقدانه و تیزبین همیشه ما را مدنظر داشتند، عمده انرژی و انگیزه پیش‌برد حرکت یانون‌دیزاین بودند. 

واقعیت آن است که مسائلی شخصی برای یک‌سالی این حرکت را متوقف کرد... اما عمده انگیزه‌ای که این سال‌ها پشت یانون‌دیزاین بود و اتفاقات خوبی که پیرامون آن در سال‌های گذشته افتاده بود مانع آن می‌شد که به کل یانون‌دیزاین را فراموش کنیم....

ما به امید خدا از امروز یعنی ابتدای اردی‌بهشت ۹۷ دوباره با انگیزه شروع خواهیم کرد. با هم از جهان هنر و طراحی خواهیم دید.... روزانه و پابه‌پای تحولاتی که در پیرامون‌ ماست.

مسجد آل رسول (ص) / استودیو پنج‌اوهفت

پنجشنبه, ۱۶ آذر ۱۳۹۱، ۱۲:۳۶ ب.ظ

یکی از جدی‌ترین انتقادات وارده به استودیوها و آتلیه‌های هنری و حتی هنرمندهایی که شخصی کار می‌کنن در داخل اینه که کم‌تر استودیویی به طور جدی به اینترنت و نشر در فضای مجازی فکر می کنه. اگرچه برخی شرکت های بزرگ دیزاین داخلی سایت هایی دارن اما غالب فعالان عرصه هنر از این فضا دور هستن. همون ها هم که دارن، معمولا وب‌سایت‌هایی رسمی با کم‌ترین اطلاعات در مورد جاری فعالیت‌های شرکت‌ها و یه جورایی وب‌سایت‌هایی آب‌روساز و بی ارزش هستن.

در حالی که در جامعه هنر غربی یکی از نکات مثبتی که مشاهده می شه وبلاگ داشتن هنرمندها و شرکت ها و استودیوهای دیزاینه. وبلاگ‌های فعالی که به روز، سیر پروژه‌ها و فعالیت‌ها و حتی آرا و اندیشه های این گروه‌ها رو روشن می کنن و نشر می‌دن.

یکی از استودیوهای داخلی طراحی و معماری که به طور جدی به نشر اینترنتی و وبلاگ‌نویسی ش اهمیت می‌ده استودیو طراحی پنج‌اوهفته. این استودیو در وبلاگ رسمی خودش سعی داره علاوه بر یادداشت‌های پراکنده هرازچندگاهی یک بار، پروژه‌هاش رو هم فراخور سیرشون و مرحله‌ای که در اون واقع هستند به اطلاع دوستان و علاقه‌مندان برسونن.

پست زیر از وبلاگ پنج‌اوهفت مربوط به یکی از پروژه‌های معماری این گروه اقتباس شده. از اون‌جا که می‌خواستم خودم در مورد طرح نظر نداده باشم :) بهتر دونستم در حاشیه این طرح، به فعالیت مثبت بلاگینگ طراحان و استودیوهای طراحی بپردازم.

 

پرسپکتیو از نمای شمالی
پرسپکتیو از سمت نمای شمالی

هیئت امنای مسجد آل رسول به منظور برپایی مسجدی به عنوان مرکز اجتماع و برگزاری مراسم مذهبی ابهری های مقیم تهران ، زمینی واقع در منطقه‌ی شهران را به وسیله‌ی شهرداری تهران، تملک کرده‌اند. این زمین همان‌گونه که در گزارش بازدید از سایت توسط استودیو پنج‌اوهفت آمد،   در دل محله‌ای مسکونی در انتهای خیابان لاله- یکی از شریان‌های فرعی بلوار شهران- واقع شده است. سایت از لحاظ موقیت قرارگیری بر روی تپه‌ای قرار دارد که از سمت جنوب به بزرگ‌راه همت، از شمال به منطقه‌ی مسکونی، از شرق به بزرگ‌راه باکری، و از غرب به ساختمان میوه و تره‌بار محله‌ی شهران منتهی می شود. به دلیل اشراف کامل سایت به دو بزرگ‌راه مهم شهر و همچنین قرارگیری در دل محله‌ی مسکونی، پیش بینی می‌گردید که این مسجد از یک سو به عنوان نشانه‌ی شهری و از سویی دیگر به عنوان فضای عمومی مذهبی در مقیاس محله، مورد توجه واقع گردد.  

در گفت‌وگوهای اولیه‌ی کارفرما و استودیوی پنج‌اوهفت مشخص گردید، انتظار اصلی کارفرما ساخت مسجدی محلی می‌باشد که پاسخ‌گوی برگزاری مراسم مذهبی از جمله جشن‌ها و ختم‌های اهالی محل و همچنین ابهری‌های مقیم تهران باشد. به همین سبب یکی از مسائل مهم پیش روی ما پس از طراحی کالبد اصلی مسجد، فراهم آوردن سالن‌های اجتماعات وسیع می‌بود.
 
موقعیت استقرار سایت در شهر (Google Map)
 
فرآیند طراحی معماری مسجد در استودیوی پنج‌اوهفت، بر اساس پاسخ‌گویی به سه چالش اصلی آغاز شد؛ جواب‌گویی به برنامه طرح، توجه به چالش‌های متعدد موجود در سایت و همچنین پاسخ به پرسش‌های طراحان از بایدها و نبایدها در چگونه ساختن مسجد براساس توجه به آموزه‌های اسلامی.
پرسپکتیو شمال شرقی
پرسپکتیو از سمت شمال شرقی
 
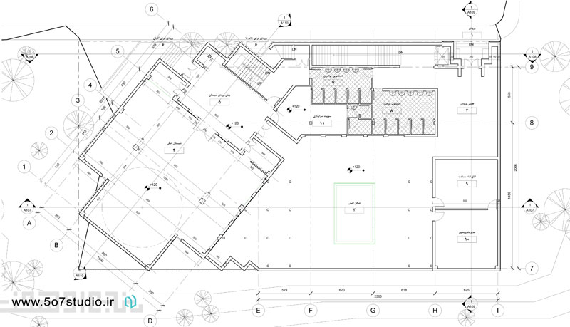
در رابطه با برنامه طرح، مسائل اصلی پیش روی ما، عبارت‌ند از: چگونگی هم‌جواری سالن‌های اجتماعات و فضای اصلی مسجد، چگونگی تفکیک مسیر های ورود و حرکت آقایان و خانم‌ها در مسجد و همچنین سالن‌های اجتماعات، توجه به موضوعات فقهی صیغه ‌ی مسجد و مسائل مرتبط به آن، مکان‌یابی مناسب تاسیسات و تجهیزات مکانیکی و ایجاد مسیر‌های دست‌رسی مناسب به منظور نگه‌داری و تعمیر آن‌ها. به این ترتیب با توجه به مسائل مطرح شده، ساختمان مسجد در دو طبقه روی زمین و یک طبقه زیرزمین پیش بینی شد که دو طبقه‌ی بالا به صحن و شبستان‌های آقایان و خانم‌ها و طبقه‌ی زیرین به سالن‌های اجتماعات و تاسیسات مکانیکی اختصاص یافت. در ضمن به منظور تفکیک مسیر‌های ورودی و حرکت آقایان و خانم‌ها سه ورودی برای مسجد در نظر گرفته شد.
 
سایت پلان
سایت پلان
 
در رابطه با سایت پروژه‌، چالش‌های عمده عبارت‌ند از: وجود بافت مسکونی و چگونگی هم‌جواری مناسب مسجد و بافت به طوری که علاوه بر حفظ شخصیت مسجد ناهمگونی در بافت ایجاد نگردد؛ چگونگی مستهلک ساختن مناسب انحراف راستای قبله و سایت؛ توجه به شیب آرام سمت جنوبی سایت؛ توجه به دیده شدن مناسب مسجد از سمت بزرگراه حکیم؛ مجاورت مسجد با ساختمان میوه و تره بار؛ قرارگیری سایت در انتهای خیابان قدس. به این ترتیب برای رفع اختلاف جهت مابین قبله و سایت، حجم اصلی شبستان مسجد به سمت قبله 38 درجه چرخش می‌یابد و برای ایجاد هم‌آهنگی با سایت مابقی بنا در جبهه‌ی شمالی و شرقی در راستای خیابان بدون هیچ چرخشی باقی می‌ماند. همچنین با توجه به شیب زمین و استقرار سالن‌های اجتماعات در طبقه‌ی زیرین، نورگیرهایی در جبهه ی جنوبی بنا در دل شیب زمین به منظور تامین نور طبیعی در سالن ها درنظرگرفته شد.
 
پرسپکتیو شمال شرقی
پرسپکتیو از سمت جنوب شرقی
 
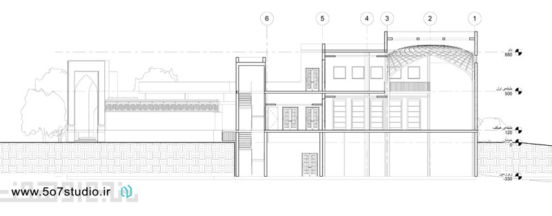
و در رابطه با چالش سوم یعنی توجه به الزامات ساخت مسجد از دیدگاه اسلام، موضوعاتی چون: میزان ارتفاع مسجد و عدم ساخت مسجدی مرتفع؛ چگونه پرداختن به موضوع هویت و شاخص‌سازی مسجد؛ لزوم یا عدم لزوم پای‌بندی به فرم های آشنا در سنت ساخت مسجد از جمله گنبد، منار، قوس و ... ؛ توجه به موضوع پرهیز از تزیینات و تجملات رایج در ساخت مساجد امروزین؛ توجه به کیفیت فضایی و پوشش سقف مساجد. به این ترتیب تصمیم طراحان بر این بود که مسجد باید تا حد امکان ساده و بدون تجمل، شاخص و متفاوت از بافت، بیان کننده‌ی راستای قبله در محله باشد. در رابطه با شاخص‌سازی مسجد با وجود تفاوت دیدگاه‌ها، در نهایت بدین جمع بندی رسیدیم که ساخت سردر و ورودی شاخص در سمت شمال شرقی سایت و نصب کتیبه در نمای شمالی می‌تواند نقش کافی در شناساندن مسجد ایفا نماید.
 
پلان همکف
پلان همکف
 
پلان طبقه اول
پلان طبقه اول
 
پلان طبقه اول
پلان زیرزمین
 
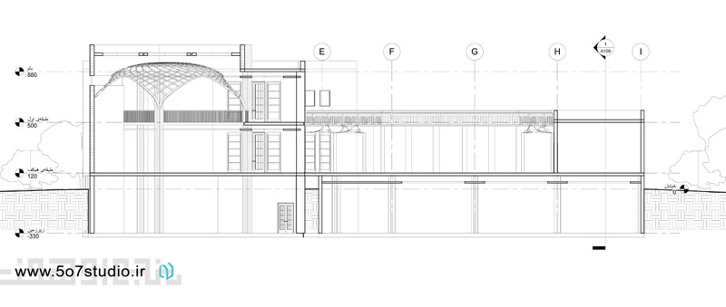
نمای شمالی
نمای شمالی
 
نمای جنوبی
نمای جنوبی
 
نمای شرقی
نمای شرقی
 
نمای غربی
نمای غربی
 
مقطع آ
برش طولی از مجموعه
 
مقطع ب
برش طولی از مجموعه

اطلاعات پروژه:
کاربری : مسجد
موقعیت سایت : ایران ، تهران ، بلوار شهران ، خیابان لاله ، خیابان فائز یک 
کارفرما : هیئت امنای مسجد آل رسول (ابهری های مقیم تهران)
اعضای گروه طراحی معماری : محمدحسین کسرائی، صادق لطفی زاده، یحیی نوریان
اعضای گروه محاسبات سازه : پدرام شهسوار
زمان طراحی : 1390
زمان اجرا :1391
زیربنای کل :1972 مترمربع
 
این مسجد هم‌اکنون در حال احداث می‌باشد که گزارش سیر روند اجرای آن نیز در وبلاگ استودیو پنج اوهفت به مرور زمان داده خواهد شد.

نظرات (۵)

منظور دوست عزیزمون، "سید صالح" از 
"انرژی لازم برای برقراری ارتباط و ایفای نقش" و بعد "گلدسته و گنبد این انرژی رو تامین می کنه" دقیقا یعنی چی!؟
منظور یک جور بار روانی و روان‌شناختیه یا اثری متافیزیکی؟
مستند این حرف چیه؟ 
آیا خبر دارند که در روایات اسلامی گنبد و گلدسته چه میزان نهی دارند؟
با سلام خسته نباشید 
توی طراحی بنا این که بنا از انرژی لازم برای برقراری ارتباط و ایفای نقش رو داشته باشه مهمه 
و این گلدسته و گنبد این انرژی رو تامین می کنه 
این تکرار در ساخت مساجد یک تکرار متعالیه و شاخص ساز که لازمه بهش توجه بشه
  • دست_انداز
  • سلام دو تا مقاله از سالینگاروس هست در مورد علت موفقیت های معماری مدرن بر اساس رسانه و ... خیلی بدردتون میخوره هر دو تا توی کتابی به اسم "یک نظریه ی معماری" از همین نویسنده به فارسی هست مقاله ی انگلیسیش رو راحت میونید گیر بیارید توی نت

    نقدتون واقعا بجاست :) و باید راه کارهایی برای حلش تدارک ببینیم و منتظر حرکت اتلیه ها نباشیم راستش اولین بار ک با سایتتون اشنا شد یادمه خیلی زود یه designboom.com ایرانی به ذهنم اومد :) البته رویکردتون در کامنت نویسی (گزیده نویسی) روی اثار عالیه منتها بهتره یه ططوری جلو بره که بحص نشر اثار رو هم بتونین داشته باشین مثلا الان معمارای ایرانی اغلب کاراشون رو میفرستن archdaily و  .... حتی اثار مسابقاتی مثل سردر پارک ولایت ! منتشر نمیشن توی داخل :(

    راستی ی پست ک به رویکرد هاتون نزدیکه به نظرم موضوع مهمیه ک میتونید این ا بازتاب بدید :)
    http://sabat.iust.ac.ir/?p=2223
    در تغییر عنوان و متن و ... هم خودتون صاحب اختیارین لزومی به ذکر منبع نیست فقط چون دیدیم مناسب اینجاست گفتم در هرصورت موفق باشین :)
    یانون‌دیزاین:
    این کار مورد نظر جزو پست های draft  یانون دیزاین هست و هنوز منتشرش نکردم حتما منتشر خواهم کرد و البته به بحث های شما در ساباط هم لینک خواهم داد. ممنون که بحث های دوستان رو معرفی کردین 
  • هیئتی گراف
  • دعوت هستید به حسینیه مجازی
    حسینیه همه طراحان
  • مریم پویان مهر
  • عالی بود!
    ممنون

    ارسال نظر

    ارسال نظر آزاد است، اما اگر قبلا در بیان ثبت نام کرده اید می توانید ابتدا وارد شوید.
    شما میتوانید از این تگهای html استفاده کنید:
    <b> یا <strong>، <em> یا <i>، <u>، <strike> یا <s>، <sup>، <sub>، <blockquote>، <code>، <pre>، <hr>، <br>، <p>، <a href="" title="">، <span style="">، <div align="">
    تجدید کد امنیتی