تجسم سنگین مفاهیم، در هنرهای نه چندان ظریف محقق میشود. مثلا در معماری یا در مجسمهسازی ما با تجسم چگالی از مفاهیم و معانی روبهرو هستیم. هرچند هم که معماری از تجسم و تعریف و روایت فاصله بگیرد باز هم آخر سر خود راوی یک مفهوم یا تاریخ یا اراده است. در میان انواع تجسمهای چگال معمارانه، گاهی موضوعاتی لطیف یا رقیق محل چالش دو چندان هستند. مثلا تا پیش از جاگرفتن شیشه در معماری، شفافیت و بیان آن به سختی از طریق معماری محقق میشد؛ هرچند در جهان سنت از همین تلاش هم نمونههایی عالی وجود دارد. حالا با آمدن شیشه نفس شفافیت، بدون هیچ جهتگیری خاصی -که صدالبته چندان هم مورد علاقه و مورد توجه نیست- دیگر به راحتی به دست آمده است و حالا تلاش برای ارائههای پیچیدهتر در جریان است.
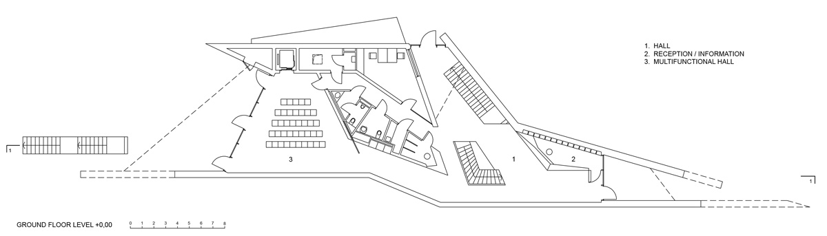
ساختمان موزه آتش در جنوب فنلاند توسط مشاورین معماری OVO طراحی شده است که نمایی تماما مسی دارد. طراحان با فرمپردازی جالب توجه و سیال بنا در کناره گذر خیابان اصلی و در کشیدهگی معنادار بنا، و نیز با انتخاب هوشمندانه ورقههای مسی با ریتم خاص به عنوان پوشش نهایی بنا، نوعی تجسم چگال اما موفق را از آتش لطیف و زبانهکش ارائه دادهاند؛ همان آتش لطیفی که تجسم کوبندهای را نیز این روزها از خود در تهران بزرگ نشان داد!









































