این طرح مسابقه برام جالب بود؛ از این حیث که دیگه رسما فضای سبز و فضای باز رو در طبقات یک برج بلند آورده ؛ رسما در طبقات از فضای باز سرسبز با ارتفاع بلند برخورد هستیم که تعریف جدیدی از برج نشینی و بلندمرتبه سازی ایجاد کرده.

'singapore subordinate courts complex' by serie architects, singapore
all images courtesy of serie architects
london-based practice serie architects and singaporean firm multiply architects have produced the winning competition proposal for the 'singapore subordinate courts complex', two new towers and the refurbishment of a low-rise octagonal structure in singapore. one building will contain criminal courtrooms while the other will hold the judge's chambers and supporting functions. footbridges will connect and control access during the judicial processes.

exterior

perimeter gardens

ground level plaza

courtroom

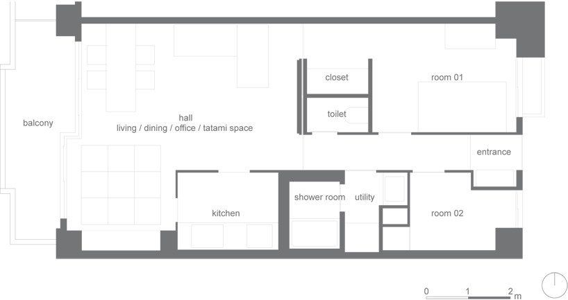
floor plan



















