یک پروژه بینظیر تو قلب تهران خودمون.
خانه ای مسکونی در محله جیحون تهران که در اوج سادگی و بدون زلم زیمبوی خاص تنها و تنها با نوآوری و اندیشه معمار نه چندان معروف پروژه به اثری فاخر و ارزشمند و حسابی تبدیل شده. معمار با طراحی دیتیلی ساده و نوآورانه آبروی معمارهای بزرگ و پرآوازهی امروز ایران زمین رو برده و نشون داده به نام نیست .. به نام نیست
دست مریزاد علی رضا مشهدی میرزا با این آجرکاری نوآورانه

'brick pattern house' by alireza mashhadimirza, tehran, iran
all images © alireza mashhadimirza
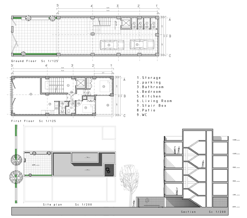
iranian designer alireza mashhadimirza was shortlisted in the housing category for the 2012 world architecture festival with 'brick pattern house', located in the jeyhoon area of tehran, iran. challenged with a low budget and building code restriction the architect decided to create a method that did not require phase two drawings for the project. the result was an attention to details which looked at an earthquake resistant structure, energy saving walls, acceptable acoustic properties, fire safety and functional technical services than a luxurious village cottage. limited with space and a local work force with no knowledge of construction methods, the design focused on the exterior and how creative brick could be. taking influence from traditional architecture, a tri-dimensional wall was created to mitigate the glaring sun. the contemporary mashrabiya covers the entire facade producing a semi-transparent partition providing privacy with no need for interior curtains. in order to communicate the pattern to the craftsmen, a table was established, similar to what carpet artisans work with, which indicated all the information and activities of each worker.
the procedure was named 'method 23' because everything was associated with that number, from the quantity of rows, pieces, boxes and columns of support. the construction was similar to putting together a large puzzle with each package having a code to identify the location and orientation of the bricks. the kit provided instructions on A4 paper with a chart numbering the items which corresponded to simple diagrams. the end project delivers a message that architecture can happen in an economically and culturally challenged area of the city.

main facade

brick texture

main entrance

detail

courtyard seating

interior view

night view

construction

method 23

plans and section



















