چند شات اول از تصاویر این بنا رو که دیدم هنوز فکر میکردم با رندرهای سه بعدی از یک طرح معماری مواجهم نه یک بنای ساخته شده
با وجود اونکه چندان فرمپردازی خاصی هم نداره این معماری اما کنتراست بالای مصالح در کنار خامی سطوح و کاشت مینیاتوری درختان در درون سایت، جلوههایی غیرواقعی از بنا ایجاد کرده.
نمیدونم این برای معماری چیز خوبیه یا نه؟ این که روح و حال و هوایی بازنمودی داشته باشه...

'binh duong junior high school' by vo trong nghia co, binh duong province, vietnam
image © oki hiroyuki
all images courtesy of vo trong nghia co
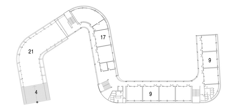
vietnamese firm vo trong nghia co has just completed the 'binh duong junior highschool' outside of ho chi minh city to house 800 students. buried within a lush forest full of fruit trees and a variety of native vegetative species, the educational institute was restricted to a height of five stories to maintain a profile below the tree tops. the swerving form gradually grows out of the ground emphasizing its connection to the site. white concrete columns and vertical louvers support the exterior corridors and passively shade the interior spaces and maintain views. the semi-permeable 'S' shape of the footprint creates two semi-protected exterior green courtyards, the first of which is used for public meeting spaces and formal events surrounded by the gym, library, laboratories and teachers' rooms. the other serves the students' classrooms, providing a private area for children to socialize around the swimming pool. the semi-transparent character of the spaces within the fluid floor plan allows for interaction between students and teachers, and provides the ability for complete privacy.

courtyard
image © oki hiroyuki

square pavers in the open air courtyards
image © oki hiroyuki

facade of vertical louvers
image © oki hiroyuki

open area between courtyards
image © oki hiroyuki

sun-shade louvers create light-filled exterior circulation
image © oki hiroyuki

blacony
image © oki hiroyuki

vertical shades create transparency
image © oki hiroyuki

exterior hallways
image © oki hiroyuki

perforated concrete wall protecting vertical circulation
image © oki hiroyuki

facade grows out of the ground
image © oki hiroyuki

floor plan / level 0

floor plan / level 1

floor plan / level 2

floor plan / level 3

floor plan / level 4

floor plan / level 5

section

elevation

elevation

complete linear elevation

spatial diagram



















