یانون دیزاین ... yanondesign

نگاهی روزانه به طراحی و هنر
نشریه‌ی ‌الکترونیکی روزانه؛ جسـتاری در هـنر و طـراحی
مشترک روزنامه یانون‌دیزاین شوید
پس از تکمیل فرآیند ثبت نام، ایمیل دریافتی را تایید نمایید.
تبلیغات

دوباره یانون‌دیزاین

قریب به نه ماه از آخرین پست انتشاری یانون‌دیزاین می‌گذرد! و دقیق‌تر قریب به یک سال از کم فعالیت‌ شدن و خسته‌ شدن یانون‌دیزاین!

یانون‌دیزاین تا پیش از این یک سال، با جامعه بزرگ و علاقه‌مندی از حوزه طراحی ، معماری و هنر آمیخته شده بود. خیلی‌ها در سال‌های ۸۶ که فقط به فرستادن ایمیل‌های گاه‌به‌گاه دیزاین به صندوق ایمیلی معدودی از دوستان ورودی ۸۵ دانش‌گاه هنرم مشغول بودم تا همین آغاز سال ۹۶ ، کم کم روزانه با ایمیل روزنامه یانون‌دیزاین، سیر اینترنتی خودشان در جهان هنر و طراحی را شروع می‌کردند. خیلی‌ها ابراز لطف فراوانی را در این سال‌ها به تیم فعال یانون‌دیزاین ابراز کرده‌اند و همین خیلی‌ها و بسیاری که منتقدانه و تیزبین همیشه ما را مدنظر داشتند، عمده انرژی و انگیزه پیش‌برد حرکت یانون‌دیزاین بودند. 

واقعیت آن است که مسائلی شخصی برای یک‌سالی این حرکت را متوقف کرد... اما عمده انگیزه‌ای که این سال‌ها پشت یانون‌دیزاین بود و اتفاقات خوبی که پیرامون آن در سال‌های گذشته افتاده بود مانع آن می‌شد که به کل یانون‌دیزاین را فراموش کنیم....

ما به امید خدا از امروز یعنی ابتدای اردی‌بهشت ۹۷ دوباره با انگیزه شروع خواهیم کرد. با هم از جهان هنر و طراحی خواهیم دید.... روزانه و پابه‌پای تحولاتی که در پیرامون‌ ماست.

قنادی زیر آسمان / معماران ناگایاما

چهارشنبه, ۲۵ دی ۱۳۹۲، ۱۱:۴۲ ب.ظ
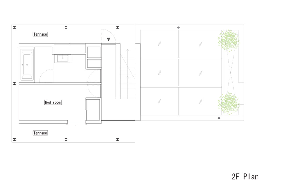
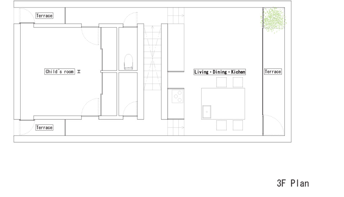
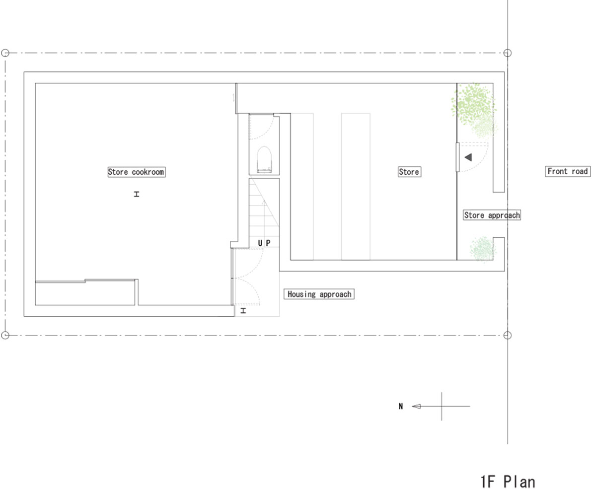
‌در نوررسانی به ترازهای پایین در معماری در بافت‌های شهری و قطعه زمین‌های کوچک، معمولا طراحان دست خود را خیلی باز نمی‌بینند. راه حلی که عرفا به کار می‌رود خالی کردن بخشی از توده به صورت یک شافت عمودی است که اگرچه از همه ترازهای ارتفاعی مساحتی می‌گیرد اما لااقل نوری حداقلی به ترازهای زیر زمین معماری می‌رساند. اما معماران ناگایاما در طراحی یک واحد تجاری-مسکونی در بافتی چگال در ژاپن راه حل هوش‌مندانه دیگری را برگزیدند. آن‌ها با ایجاد یک شکاف بزرگ و عمیق و حساب شده در نمای ساختمان بدون آن که بر معماری تراز بالاتر تاثیری بگذارند نوری کافی به تراز پایین تر رسانده‌اند. هم‌چنین این انتخاب موجب تعریف رابطه‌ی جدیدی میان بخش تجاری بنا با فضای بیرون شده است.
مساحت زمین پروژه تنها ۱۰۰ متر بوده است و طبعا این انتخاب معمارانه را می‌توان در رابطه‌ی جدی با مشکلات کم‌بود زمین ساخت در ژاپن نیز دانست.
yuko nagayama stacks the katsutadai residence over a pastry shop

nagayama katsutadai english
nagayama katsutadai english
nagayama katsutadai english
nagayama katsutadai english
[+]

نظرات (۴)

  • علی اکبر
  • توده به این بزرگی رو کنسول کرده و فقط همون دو تا  دونه المان عمودی 20 سانتی رو واسه نگه داشتنش گذاشته ؟
    امان از این چشم بادومی ها 
    همه چیز رو ریز میبینن .... حواسشون نبوده این وزنش زیاده
    :)
    خیلی کار جالبی بود 
    تشکر 

    مرسی یانون دیزاین...
  • مریم محمدی
  • از مصادیق "معما چو حل گشت آسان شود" بود ها!
    کارای معماری این ریختی جیگر حال بیار رو بیشتر کنین خواهشاً!

  • صادق لطفی زاده
  • خیلی وقت بود کار معماری این ریختی منتشر نشده بود
    جیگرمون حال اومد
    :)

    ارسال نظر

    ارسال نظر آزاد است، اما اگر قبلا در بیان ثبت نام کرده اید می توانید ابتدا وارد شوید.
    شما میتوانید از این تگهای html استفاده کنید:
    <b> یا <strong>، <em> یا <i>، <u>، <strike> یا <s>، <sup>، <sub>، <blockquote>، <code>، <pre>، <hr>، <br>، <p>، <a href="" title="">، <span style="">، <div align="">
    تجدید کد امنیتی