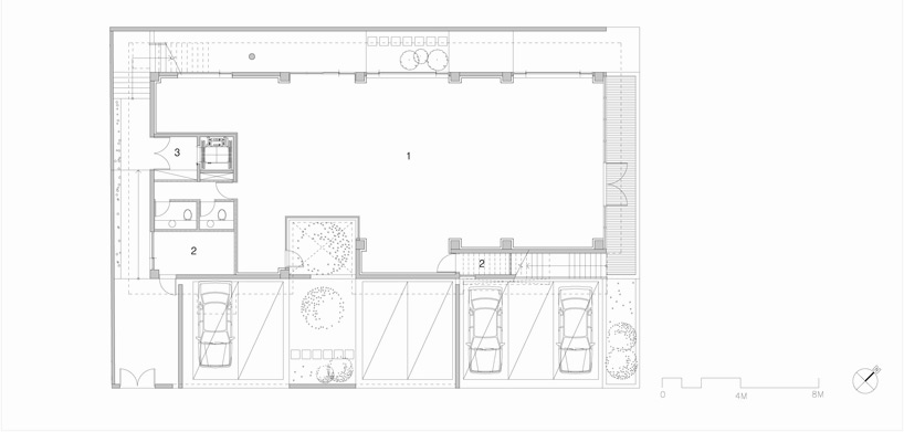
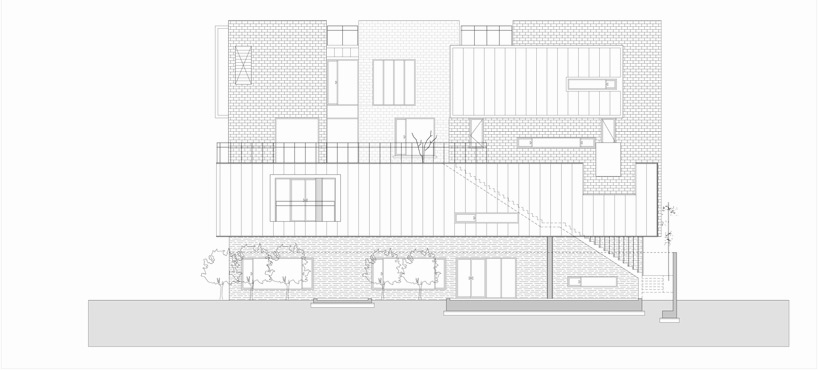
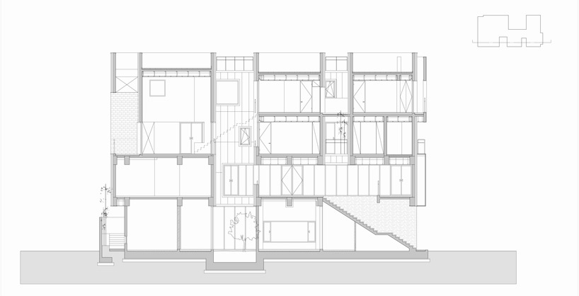
وقتی آپارتمانسازی متدوال میشود و طبقات و حجم ساختمانها بالا میرود، باید برای انسانیتر شدن آن چارهای اندیشید. طراحان کرهای ساختمانی چهارطبقه طراحی کردهاند که مرکب از سه حجم عمودی و یک حجم افقی است. با این ایده، این مجموعهی مسکونی از یک تودهی سنگین و بدون نفوذ خارج شده و در عین حال یکپارچهگی خود را حفظ کرده است. استفاده از زنگهای روشن و تیره در کنار هم و بازشوهای با ابعاد متفاوت و متناسب کمک به ایجاد تعادل بصری در نمای آن کرده است.
استفاده از آجر در این ابعاد ساخت اگرچه سطوح را متنوع و جذابتر میکند، اما استفادهی بیمحابا از آن ظاهر را ملالآور خواهد کرد که در این بنا بر این مشکل فائق آمدهاند. معماران AEA همچنین با بالا بردن یک طبقهای این تودهی سیاه آجری، از سنگینی بنا کاستهاند.












[+]



















