طراحی در بافت تاریخی از دغدغههای بزرگ کلانشهریهای جهان معاصر و از صورت مسالههای رایج و البته جذاب دانشجویان و طراحان معمار است. غالب جوابهای موجود به مساله طراحی در بافتهای تاریخی حداقل در کشور ما این سالها از یکی دو گزینه تجاوز نمیکند و معمولا هم تلاش برای احیای رفتارهای جدید در قالب کالبدهای قدیمی آنقدر سهم بزرگی از ذهن طراحان را به خود مشغول میکند که کمتر نوآوری در تکنیک، رفتار و فرم را شاهد هستیم. اما گستره بزرگ پاسخها در جهان معاصر نشان میدهد که این فقدان نوآوریها ریشه در چیزهای دیگر دارد. نگاههای میراثی گاهی آنقدر کالبد مادی بنای قدیمی را به طور مسخرهای، مقدس و دورازدسترس میکنند که جرات هر طراحی را در بازآفرینی و بازپروری معماری به کل میگیرند. در حالی که شاید مهمتر از چند خشت و آجر روح و هندسه و منطق حاکم بر میراث ماست...
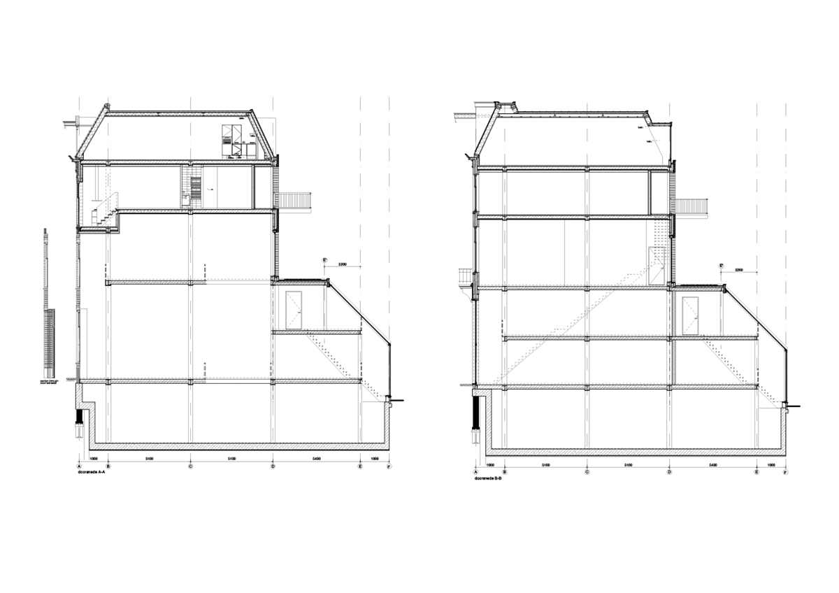
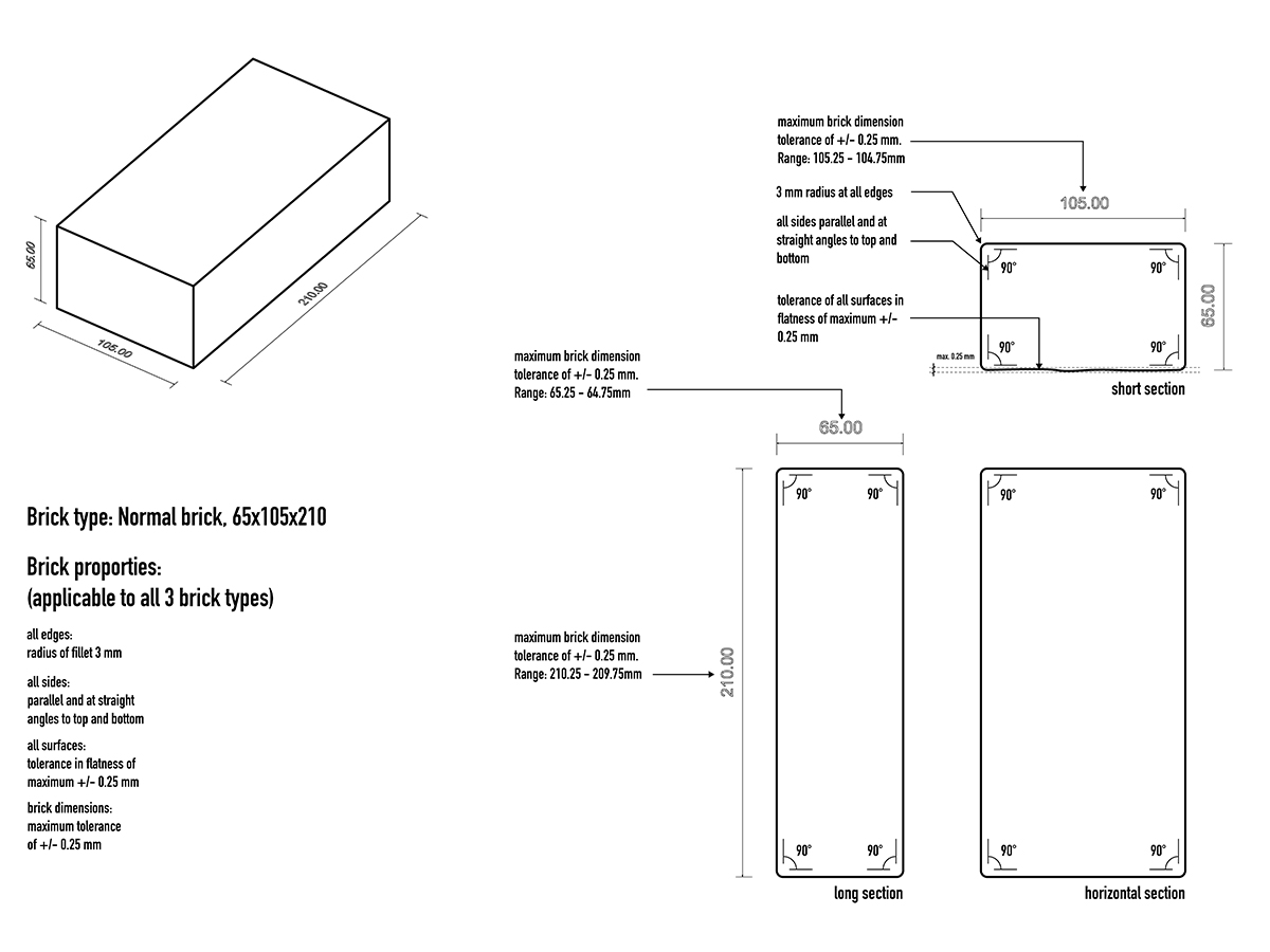
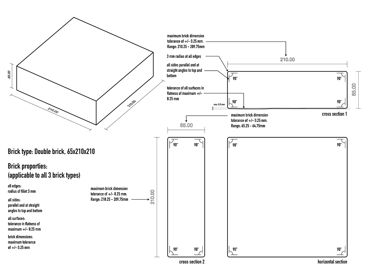
طراحان MVRDV در بازسازی یک خانه در محلهای قدیمی از آمستردام و تغییر کاربری آن به فروشگاه مد، با نوآوری در مصالح، روش ساخت و فرم با تطبیق کامل و حفظ تمام هندسههای بستر و خط آسمان و.... یک کار نوآورانه و به شدت تکنیکال ارائه دادهاند. آنها با تخریب کامل بنای قدیمی و ساخت کالبدی با همان هندسه قبلی و در تطبیق با همسایهگیها، با کاربرد بلوکهای شیشهای توپر قالبریزی شده به جای آجرهای قدیمی و تغییر تدریجی آنها، کالبدی شفاف را رقم زدهاند که تدریجا در بافت سنتی تاریخی محل در ترازهای بالای ساختمان حل میشود.
مجموعه عملیات تکنیکی این کار جالب که با همکاری دانشگاه دلفت انجام شده است، در ویدیویی جالب ارائه شدهاست که توصیه میشود حتی به مدت ابزارهای نهچندان مجاز :) حتما آن را ببینید.



































